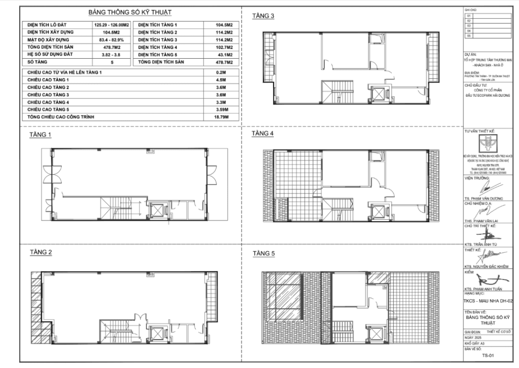
ECO-18 là shophouse Buôn Ma Thuột đường Y Ngông sở hữu vị trí mặt tiền trung tâm hiếm có, quy mô lô đất 126m² cùng tổng diện tích sàn lên đến 478,7m², đáp ứng đồng thời nhu cầu kinh doanh, khai thác dòng tiền và tích lũy tài sản bền vững. Trong bối cảnh trục Y Ngông ngày càng khẳng định vai trò xương sống thương mại của thành phố, ECO-18 nổi bật như một lựa chọn chiến lược dành cho nhà đầu tư và chủ sở hữu muốn nắm giữ bất động sản lõi có khả năng gia tăng giá trị theo thời gian.

ECO-18 Shophouse Buôn Ma Thuột đường Y Ngông – Vị trí mở khóa dòng tiền bền vững
ECO-18 là shophouse mặt tiền đường Y Ngông – trục giao thương huyết mạch của trung tâm Buôn Ma Thuột, nơi hội tụ lưu lượng di chuyển cao, hoạt động kinh doanh sôi động và khả năng nhận diện thương hiệu vượt trội; hướng Bắc giúp công trình đón gió mát, hạn chế nắng gắt, tạo điều kiện lý tưởng cho cả vận hành thương mại lẫn sinh hoạt dài hạn, đồng thời hưởng trọn lợi thế kết nối nhanh các tuyến Mai Hắc Đế – Lê Duẩn – Lê Hồng Phong trong lõi đô thị đang tăng tốc phát triển.

Shophouse Buôn Ma Thuột đường Y Ngông – Thông số tối ưu cho khai thác đa tầng
Với kích thước 7×18 trên diện tích lô đất 126m², ECO-18 sở hữu diện tích xây dựng 104,5m² và tổng diện tích sàn lên đến 478,7m², cho phép tổ chức không gian kinh doanh – dịch vụ ở các tầng dưới và không gian ở hoặc cho thuê linh hoạt ở các tầng trên; mặt bằng được thiết kế theo chuẩn shophouse đô thị hiện đại, tối ưu chiều cao, công năng và dòng di chuyển, phù hợp nhiều mô hình như showroom, văn phòng, spa, trung tâm đào tạo hay lưu trú cao cấp, mang lại hiệu suất khai thác rõ rệt trên cùng một tài sản.

Thiết kế shophouse chuẩn di sản đô thị

ECO-18 được phát triển theo tinh thần shophouse thương mại trung tâm với kiến trúc đồng bộ, mặt tiền sang trọng và khả năng cá nhân hóa cao, vừa đảm bảo tính thẩm mỹ đô thị vừa nâng giá trị tài sản theo thời gian; sự kết hợp giữa vị trí Y Ngông, quy mô sàn lớn và định hướng phát triển bền vững giúp ECO-18 không chỉ là sản phẩm để kinh doanh ngay mà còn là tài sản tích lũy dài hạn, phù hợp cho nhà đầu tư tìm kiếm shophouse Buôn Ma Thuột đường Y Ngông có khả năng tạo dòng tiền ổn định và giá trị truyền đời.
Eco lifestyle tại Ecopalace là chuẩn sống nơi ở – kinh doanh – đầu tư cùng hội tụ trong một hệ sinh thái trung tâm, nơi mỗi mét vuông không chỉ phục vụ hiện tại mà còn tích lũy giá trị dài hạn cho tương lai Buôn Ma Thuột.



Tổng hòa vị trí mặt tiền trung tâm, quy hoạch bài bản và khả năng khai thác linh hoạt, ECO-18 là lựa chọn shophouse Buôn Ma Thuột đường Y Ngông phù hợp cho cả kinh doanh hiện tại lẫn tích sản dài hạn, đáp ứng trọn vẹn nhu cầu sở hữu bất động sản lõi có giá trị tăng trưởng bền vững theo thời gian.













