ECO-20 là sản phẩm shophouse thương mại khu Y Ngông nổi bật tại trung tâm Buôn Ma Thuột, hội tụ đầy đủ yếu tố vị trí – thiết kế – công năng để vừa kinh doanh hiệu quả, vừa an cư lâu dài. Với quy mô chuẩn 7×18, mặt tiền trục Y Ngông sầm uất và hướng Bắc ổn định phong thủy, ECO-20 được xem là lựa chọn chiến lược cho nhà đầu tư và người mua ở thực đang tìm kiếm giá trị bền vững.

Tâm điểm giao thương trục Y Ngông – Lõi vàng kinh doanh Buôn Ma Thuột
Shophouse thương mại khu Y Ngông ECO-20 nằm trên trục Y Ngông – một trong những tuyến đường huyết mạch của Buôn Ma Thuột, kết nối nhanh các khu hành chính, thương mại và khu dân cư hiện hữu. Lợi thế mặt tiền trung tâm giúp sản phẩm dễ dàng tiếp cận dòng khách ổn định suốt ngày, phù hợp mở cửa hàng, showroom, văn phòng dịch vụ hoặc mô hình kinh doanh kết hợp ở. Hướng Bắc của căn nhà mang lại sự ổn định về vi khí hậu, hạn chế nắng gắt buổi chiều, tạo điều kiện thuận lợi cho cả sinh hoạt và khai thác thương mại lâu dài.

Chuẩn shophouse thương mại trung tâm – Diện tích lớn, công năng khai thác tối đa
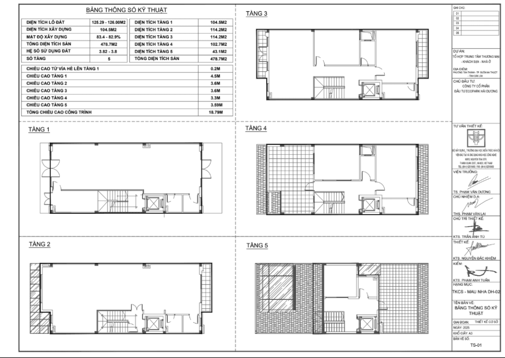
ECO-20 sở hữu thông số chuẩn cho một shophouse thương mại khu Y Ngông khai thác hiệu quả với diện tích lô đất 126m², diện tích xây dựng 104.5m² và tổng diện tích sàn lên đến 478.7m². Không gian được tổ chức khoa học theo chiều cao, tách bạch rõ khu kinh doanh và khu sinh hoạt, giúp chủ sở hữu dễ dàng vừa vận hành thương mại vừa đảm bảo riêng tư.
Quy mô sàn lớn mở ra nhiều phương án khai thác như cho thuê từng tầng, kết hợp nhiều mô hình dịch vụ hoặc tích sản lâu dài trong bối cảnh quỹ đất trung tâm ngày càng khan hiếm.

Thiết kế linh hoạt cho kinh doanh dài hạn – Ở ổn định, khai thác bền vững

Thiết kế của shophouse thương mại khu Y Ngông ECO-20 hướng đến tính thực dụng và bền vững, tối ưu mặt tiền cho nhận diện thương hiệu và trưng bày, đồng thời đảm bảo không gian bên trong thông thoáng, dễ cải tạo theo từng loại hình kinh doanh.
Tổng thể kiến trúc hài hòa giữa yếu tố thương mại hiện đại và công năng ở lâu dài, phù hợp với gia đình trẻ, chủ doanh nghiệp địa phương hoặc nhà đầu tư muốn xây dựng tài sản truyền đời ngay tại lõi trung tâm Buôn Ma Thuột.
Sống, kinh doanh và đầu tư trong cùng một không gian – nơi nhịp sống đô thị hiện đại hòa cùng giá trị an cư bền vững giữa trung tâm Ban Mê.



Với lợi thế vị trí mặt tiền, quy mô sàn lớn và thiết kế tối ưu, ECO-20 xứng đáng là shophouse thương mại khu Y Ngông dành cho những ai tìm kiếm cơ hội kinh doanh ổn định và giá trị gia tăng dài hạn. Đây không chỉ là một sản phẩm bất động sản, mà là nền tảng để an cư – lập nghiệp – tích sản bền vững tại trung tâm Buôn Ma Thuột.













