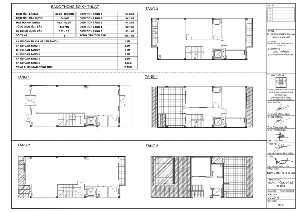
ECO-16 là lựa chọn nổi bật dành cho khách hàng đang tìm shophouse trung tâm Y Ngông với khả năng khai thác thương mại cao, vị trí mặt tiền đắc địa và thiết kế tối ưu theo tiêu chuẩn EcoPalace. Với lô đất 126m², tổng sàn 478,7m² và hướng Bắc thoáng mát, căn shophouse này được kiến tạo để phục vụ đa dạng mô hình kinh doanh.

Mặt tiền Y Ngông kết nối trục kinh tế lõi Buôn Ma Thuột
ECO-16 sở hữu mặt tiền trực diện Y Ngông – trục thương mại trọng điểm kết nối trung tâm hành chính, khu dân cư hiện hữu và các tuyến huyết mạch Mai Hắc Đế – Lê Hồng Phong. Đây là vị trí được đánh giá giàu tiềm năng kinh doanh nhờ mật độ di chuyển lớn và lợi thế tiếp cận khách hàng bản địa lẫn du khách.
Hướng Bắc giữ cho không gian kinh doanh luôn ổn định nhiệt độ, hạn chế nắng gắt, giúp gia tăng trải nghiệm khách đến và tối ưu hiệu suất vận hành. Shophouse nằm trong khu cấu trúc nhà phố đồng bộ, tạo nên trục thương mại liền mạch và khả năng nhận diện cao cho mọi mô hình khai thác.

Không gian kinh doanh rộng, linh hoạt nhiều mô hình thương mại
ECO-16 sở hữu diện tích xây dựng 104,5m² và tổng sàn 478,7m², trong đó tầng 1 và tầng 2 được thiết kế thành không gian thương mại lớn (67,8m² và 81,2m²) – một ưu thế hiếm có trong phân khúc shophouse trung tâm thành phố.
Bố trí mặt bằng này cho phép chủ sở hữu triển khai F&B, showroom, văn phòng, spa hoặc mô hình dịch vụ cao cấp, tận dụng dòng khách từ trục Y Ngông – nơi được xem là tuyến phố thương mại mới của EcoPalace. Kho, WC, khu để xe và sân sau được quy hoạch riêng biệt, đảm bảo vận hành mượt mà, chuyên nghiệp – yếu tố mà bất kỳ mô hình kinh doanh dài hạn nào cũng cần.

Thiết kế 5 tầng công năng hoàn chỉnh, tối ưu vừa ở vừa kinh doanh

ECO-16 được thiết kế 5 tầng, trong đó khối thương mại đặt toàn bộ tầng dưới và khối ở bố trí từ tầng 3 trở lên với phòng khách, bếp ăn, 4 phòng ngủ, phòng thờ và sân thượng rộng. Các phòng ngủ đều có cửa sổ hoặc ban công, bảo đảm thông thoáng tự nhiên, giúp chủ sở hữu vừa khai thác kinh doanh vừa duy trì môi trường sống riêng tư – chỉ có ở shophouse cao tầng trung tâm.
Sân chơi – sân phơi – sân thượng lớn tạo thêm không gian sinh hoạt hoặc thiết kế thành khu relaxation, phù hợp phong cách Eco lifestyle theo định hướng toàn khu EcoPalace.
Sống giữa nhịp thương mại sôi động nhưng vẫn giữ trọn không gian an lành – đó là chuẩn Eco Lifestyle dành cho những chủ nhân biết chọn giá trị bền vững.



ECO-16 là sản phẩm shophouse trung tâm Y Ngông đáng sở hữu khi hội tụ vị trí mặt tiền kinh doanh đắc địa, thiết kế chuẩn thương mại và cấu trúc 5 tầng linh hoạt. Đây là cơ hội đầu tư phù hợp cho khách hàng muốn kinh doanh ngay, đồng thời tích sản bền vững tại lõi EcoPalace Buôn Ma Thuột.













