Yêu cầu tư vấn

ECO-109 Shophouse mặt tiền Mai Hắc Đế, hướng Đông Nam, diện tích 126m²

Giá chào bán:

28.XXX.XXX.XXX

Diện tích:

126,00m2

Ngang:

7m

Dài:

18m

Thông tin mô tả

ECO-109 Shophouse mặt tiền Mai Hắc Đế sở hữu vị trí cực hiếm: nằm ngay gần lối vào trung tâm thương mại, nơi tập trung dòng khách đông nhất tại EcoPalace. Kết hợp cùng hướng Đông Nam, lô đất 126m² và tổng diện tích sàn lên tới 478.7m², ECO-109 trở thành lựa chọn dẫn đầu cho khách hàng muốn mở mô hình kinh doanh mạnh hoặc sở hữu tài sản trung tâm có tiềm năng tăng trưởng vượt bậc tại Buôn Ma Thuột.

ECO-109 Shophouse mặt tiền đường Mai Hắc Đế
ECO-109 Shophouse mặt tiền đường Mai Hắc Đế

Vị trí mặt tiền Mai Hắc Đế – gần lối vào trung tâm thương mại

ECO-109 nằm trên trục Mai Hắc Đế – tuyến thương mại quan trọng nhất dự án, với lợi thế lớn nhất là kề cận lối vào trung tâm thương mại. Đây là điểm đón trọn lượng khách đổ về mỗi ngày, tạo lợi thế tự nhiên cho các ngành hàng cần nhận diện mạnh như F&B, cửa hàng thời trang, showroom, beauty clinic, studio hay mô hình dịch vụ.

Vị trí này không chỉ đem lại lượng khách ổn định, mà còn là “lá chắn” giữ giá trị tài sản bền vững theo thời gian. Mặt tiền rộng – thoáng – dễ setup bảng hiệu giúp ECO-109 vượt trội so với các căn shophouse thông thường trong cùng phân khúc.

Hướng Đông Nam mát mẻ giúp không gian kinh doanh hạn chế nắng gắt, vận hành thoải mái suốt cả ngày – yếu tố được giới chuyên đầu tư đánh giá cao khi chọn mặt bằng thương mại.

ECO-109 Shophouse mặt tiền Mai Hắc Đế – diện tích sàn gần 500m² tối ưu khai thác

ECO-109 Shophouse mặt tiền Mai Hắc Đế có cấu trúc chuẩn shophouse thương mại 5 tầng, đảm bảo vừa kinh doanh, vừa cho thuê, vừa ở dài hạn:

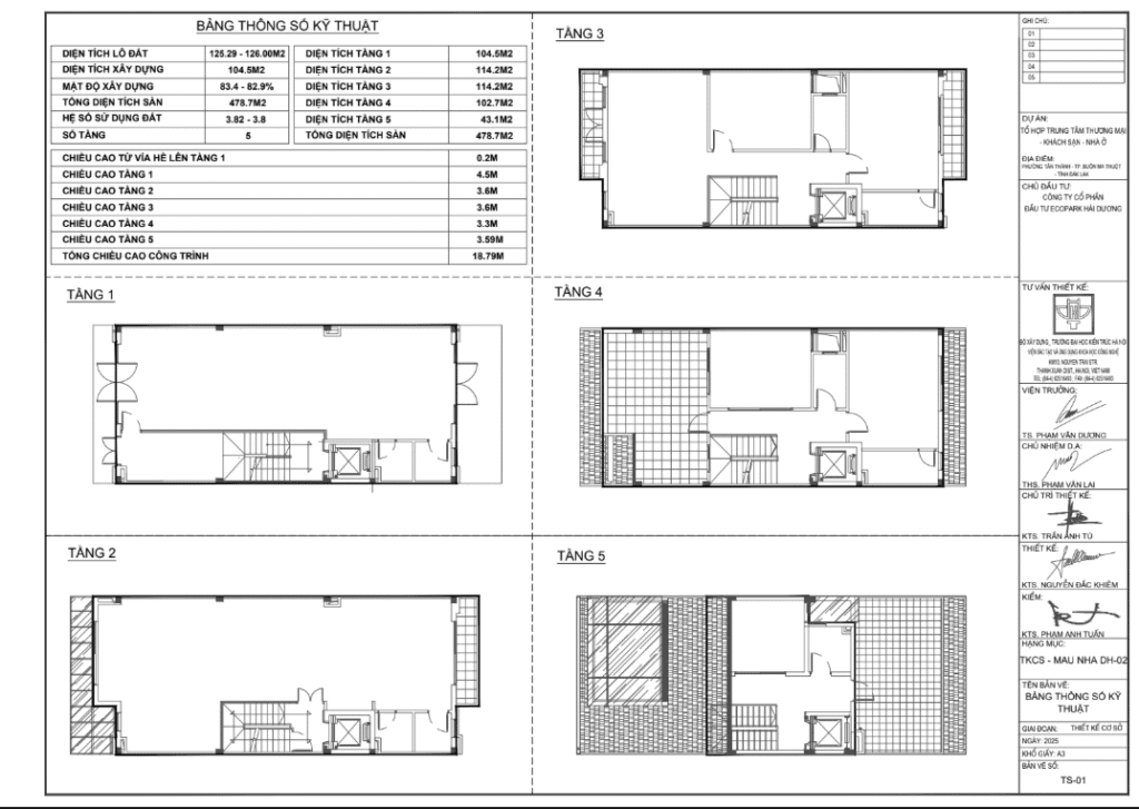
  • Diện tích lô đất: 126 m²
  • Diện tích xây dựng: 104.5 m²
  • Tổng diện tích sàn: 478.7 m²
  • Mật độ xây dựng: ~83%
  • Số tầng: 5 tầng

Tầng 1 thiết kế thương mại chuẩn, lối đi thuận tiện, chiều sâu lớn; các tầng trên tối ưu công năng, dễ bố trí thành không gian làm việc – studio – căn hộ dịch vụ – hoặc mô hình ở kết hợp kinh doanh.

Biên độ diện tích lớn giúp chủ sở hữu dễ dàng tăng doanh thu khai thác và linh hoạt tùy biến mô hình trong từng giai đoạn.

Bảng thông số kỹ thuật ECO-109
Bảng thông số kỹ thuật ECO-109

Thiết kế chuẩn thương mại – linh hoạt mọi loại hình kinh doanh

ECO-109 Shophouse mặt tiền đường Mai Hắc Đế
ECO-109 Shophouse mặt tiền đường Mai Hắc Đế

Từng tầng của ECO-109 Shophouse mặt tiền Mai Hắc Đế đều có ưu thế riêng:

  • Tầng 1: Không gian kinh doanh rộng 67.8 m², sâu, thông thoáng. Phù hợp mở showroom, quán cà phê, tiệm bánh, spa, cửa hàng tiện lợi, văn phòng dịch vụ,…
  • Tầng 2: Diện tích lớn, layout mở – thích hợp mở rộng kinh doanh, làm văn phòng, lớp học, phòng studio.
  • Tầng 3–4: Thiết kế chuẩn nhà ở cao cấp với nhiều phòng ngủ, WC riêng, ban công trước sau. Tối ưu cho mô hình homestay, cho thuê dài hạn hoặc làm văn phòng đại diện.
  • Tầng 5: Phòng thờ và sân thượng rộng – dễ thiết kế khu BBQ, sân vườn hoặc không gian thư giãn riêng tư.

Tổng thể kiến trúc mang lại sự linh hoạt tuyệt đối để chủ sở hữu tối ưu dòng tiền theo từng mô hình.

Sống và kinh doanh tại ECO-109 Shophouse mặt tiền Mai Hắc Đế là tận hưởng chuẩn Eco lifestyle đầu tiên tại Buôn Ma Thuột – nơi không gian xanh, tiện ích thương mại và giá trị văn hóa bản địa hòa quyện trong một tổng thể sống đẳng cấp.

Eco Palace - Chuẩn Eco life style đầu tiên tại Buôn Ma Thuột
Eco Palace – Chuẩn Eco life style đầu tiên tại Buôn Ma Thuột
Tiến độ dự án Eco Palace
Tiến độ dự án Eco Palace
Eco Palace đảm bảo tiến độ thi công đúng cam kết
Eco Palace đảm bảo tiến độ thi công đúng cam kết

ECO-109 Shophouse mặt tiền Mai Hắc Đế là căn hiếm hoi hội tụ vị trí gần lối vào trung tâm thương mại, hướng đẹp, mặt tiền rộng và khả năng khai thác kinh doanh vượt trội. Đây là tài sản trung tâm mà khách mua để giữ giá trị, khai thác dòng tiền hay mở mô hình thương mại đều không thể bỏ qua. Một căn – một vị trí – một cơ hội duy nhất tại EcoPalace.

Tổng quan dự án Eco Palace
Tổng quan dự án Eco Palace
Vị trí chiến lược vùng
Vị trí chiến lược vùng
Vị trí kim cương của Eco Palace
Vị trí kim cương của Eco Palace
Chủ đầu tư dự án Eco Palace
Chủ đầu tư dự án Eco Palace

Thông tin thêm

  • Loại căn:

    - Shophouse mặt tiền Mai Hắc Đế

  • Hướng:

    - Đông Nam

  • Mặt tiền:

    - Mai Hắc Đế

  • Chiều cao:

    - 18.79m

  • Mật độ xây dựng:

    - 83.4 - 82.9%

  • Tổng diện tích sàn:

    - 478.7m2

Liên hệ tư vấn

    Bạn không thể sao chép nội dung của trang này