ECO-40 – Shophouse Thổ Cẩm sở hữu vị trí mặt tiền tuyến phố Thổ Cẩm – tâm điểm giao thương của toàn khu đô thị Ecopalace.

Nằm ở trung tâm dãy shophouse, hướng thẳng về khu căn hộ cao cấp, khách sạn 5 sao và trung tâm thương mại, ECO-40 – Shophouse Thổ Cẩm được đánh giá là một trong những căn có giá trị thương mại ổn định và tiềm năng khai thác cao nhất trên trục Thổ Cẩm.
Với lợi thế “trung tâm – kết nối – nhìn thẳng tiện ích”, ECO-40 đặc biệt phù hợp với các mô hình kinh doanh dịch vụ, boutique, F&B tinh gọn hoặc căn hộ dịch vụ cao cấp cho chuyên gia.
Mặt tiền Thổ Cẩm – trung tâm tuyến phố – hướng trực diện tiện ích
Lợi thế thương mại ECO-40 – Shophouse Thổ Cẩm
Tuyến phố Thổ Cẩm là trục thương mại – dịch vụ chính của Ecopalace, nơi tập trung dòng khách lớn nhất dự án. ECO-40 nằm ngay điểm cân bằng lưu lượng, nơi cư dân từ Y Ngông, từ khối shophouse, cộng đồng cư dân căn hộ và khách vãng lai đi lại liên tục.
Các lợi thế nổi bật của ECO-40 – Shophouse Thổ Cẩm
- Vị trí trung tâm tuyến phố → lưu lượng ổn định cả ngày.
- Hướng trực diện khu căn hộ cao cấp – khách sạn 5 sao – TTTM → nguồn khách có khả năng chi tiêu cao.
- Không bị che chắn tầm nhìn → nhận diện thương hiệu tốt.
- Hai chiều giao thương: cư dân nội khu + dòng khách tiện ích.
Nhờ lợi thế này, ECO-40 – Shophouse Thổ Cẩm phù hợp để phát triển những mô hình kinh doanh cần sự ổn định, dễ thu hút khách và có giá trị bền vững.
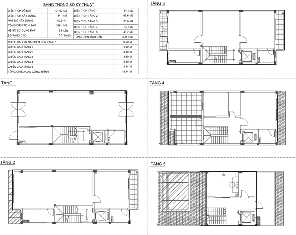
ECO-40 – Shophouse Thổ Cẩm: 6,5m mặt tiền – 5 tầng – thiết kế chuẩn thương mại
Tối ưu cho kinh doanh – ở – cho thuê
ECO-40 – Shophouse Thổ Cẩm được thiết kế với mục tiêu tối đa hóa khả năng khai thác thương mại và giá trị vận hành lâu dài.
Thông số thiết kế ECO-40 – Shophouse Thổ Cẩm
- Mặt tiền: 6.5m – bảng hiệu lớn, khả năng thu hút tốt.
- Diện tích đất: 104m² – vuông vức, dễ bố trí.
- Số tầng: 5 tầng → đa mục đích: kinh doanh – văn phòng – dịch vụ – lưu trú.
- Diện tích sàn: 399.1m² – tối ưu diện tích khai thác.
- Hai mặt thoáng + lối hậu → thuận tiện vận hành, tách biệt tầng kinh doanh và tầng ở.

Các mô hình phù hợp với ECO-40 – Shophouse Thổ Cẩm
- Café/tea – bakery – cửa hàng sức khỏe – beauty
- Showroom, boutique thời trang, decor, studio sáng tạo
- Văn phòng công ty, phòng khám nhỏ, dịch vụ giáo dục
- Homestay cao cấp / căn hộ dịch vụ cho chuyên gia
Thiết kế linh hoạt của ECO-40 – Shophouse Thổ Cẩm cho phép chủ sở hữu khai thác ngay từ năm đầu, dễ dàng tối ưu công suất và dòng tiền.
Kiến trúc hiện đại, mặt đứng dễ nhận diện, phù hợp mọi mô hình kinh doanh
ECO-40 – Shophouse Thổ Cẩm mang phong cách hiện đại, cao ráo, mặt kính lớn giúp đón sáng tự nhiên, tạo cảm giác mở và sang trọng – rất phù hợp cho kinh doanh dịch vụ, thời trang, showroom và các ngành cần hình ảnh nhận diện.

Điểm mạnh về kiến trúc:
- Mặt đứng thoáng → dễ thiết kế bảng hiệu, billboard.
- Ánh sáng tự nhiên tốt → giảm chi phí vận hành.
- Bố cục hợp lý, tầng 1 cao ráo → tăng trải nghiệm khách.
- Các tầng trên thông thoáng → lý tưởng cho căn hộ dịch vụ hoặc văn phòng.
Kiến trúc được tối ưu để vừa đẹp vừa hỗ trợ khách hàng trong mọi mô hình.



ECO Lifestyle – Chọn shophouse là chọn phong cách sống – kinh doanh – đầu tư chuẩn “xanh – tiện ích – thông minh”
ECO-40 – Shophouse Thổ Cẩm là một phần của hệ giá trị Eco Lifestyle mà Ecopalace mang đến cho Buôn Ma Thuột.

Eco Lifestyle tại Ecopalace nhấn mạnh:
- Không gian xanh – tiện ích liền mạch – sống và kinh doanh tối ưu, đảm bảo dòng khách văn minh, ổn định.
- Cư dân di chuyển chủ yếu bằng đi bộ trong nội khu → shophouse dễ thu hút khách tự nhiên.
- Các tiện ích hiện đại → tạo môi trường kinh doanh văn minh, chất lượng cao.
- Sự kết hợp giữa thương mại – dịch vụ – lưu trú → nguồn khách đa dạng, bền vững.

Sống – kinh doanh – đầu tư tại ECO-40 – Shophouse Thổ Cẩm là hưởng trọn phong cách sống vừa hiện đại vừa hài hòa thiên nhiên, chuẩn đô thị kiểu mới.







