
Eco-42 shophouse Thổ Cẩm nằm ngay trung tâm tuyến phố thương mại sầm uất nhất dự án, liền kề căn khe thoáng và thừa hưởng trọn lợi thế về tầm nhìn, dòng khách, khả năng nhận diện.
Với hướng Nam, mặt tiền 6.5m và lưu lượng khách ổn định từ khu căn hộ cao cấp, khách sạn, trung tâm thương mại, Eco-42 là căn shophouse có tiềm năng khai thác kinh doanh thương mại cực lớn.
Vị trí Thổ Cẩm – trung tâm tuyến phố – liền kề khe thoáng

Tăng lưu lượng khách – tăng nhận diện – tăng hiệu suất kinh doanh
Eco-42 shophouse Thổ Cẩm sở hữu vị trí mặt tiền đắt giá trên trục Thổ Cẩm – nơi hội tụ toàn bộ dòng khách từ Y Ngông, khu căn hộ, khách sạn 5 sao và trung tâm thương mại.
Các lợi thế vị trí rõ rệt:
- Mặt tiền Thổ Cẩm – trục thương mại lớn nhất Ecopalace.
- Liền kề căn khe thoáng → hưởng thêm ánh sáng, tầm nhìn mở và sự thông thoáng tự nhiên.
- Trung tâm tuyến phố → lưu lượng khách đều, không bị “điểm chết”.
- Hướng Nam → dễ setup ngành hàng, hợp phong thuỷ kinh doanh.
- Tầm nhìn trực diện vào khu căn hộ và trục di chuyển chính.
Nhờ vị trí này, Eco-42 dễ thu hút khách tự nhiên, phù hợp mô hình dịch vụ, showroom hoặc ngành hàng cần nhận diện mạnh.
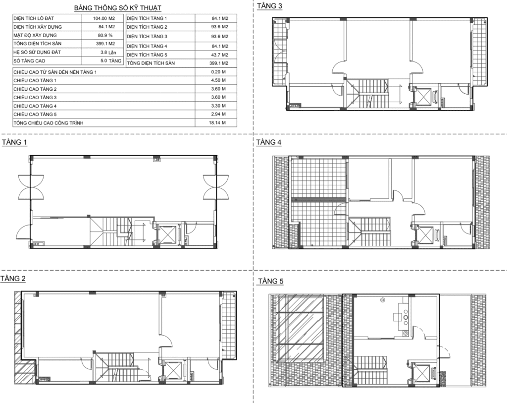
Shophouse 6.5m mặt tiền – 5 tầng – 399.1m² sàn sử dụng
Điểm mạnh khai thác của Eco-42 shophouse Thổ Cẩm
- Mặt tiền rộng 6.5m → dễ treo bảng hiệu lớn, tăng nhận diện thương hiệu.
- Tầng 1 thoáng rộng → phù hợp F&B, showroom, dịch vụ chăm sóc, cửa hàng flagship.
- Các tầng trên dễ bố trí homestay, officetel hoặc văn phòng mini.
- Có lối sau & độ thoáng tốt → thuận tiện vận hành, phân luồng kinh doanh & sinh hoạt.
- Sàn lớn gần 400m² → tách tầng cho thuê, linh hoạt dòng tiền.

Gợi ý các mô hình phù hợp với Eco-42 shophouse Thổ Cẩm
- Café – bakery – trà sữa – F&B boutique.
- Spa – clinic – nail – salon.
- Thời trang – phụ kiện – nội thất – decor.
- Văn phòng start-up – studio sáng tạo – trung tâm kỹ năng.
- Căn hộ dịch vụ cho chuyên gia.
Eco-42 là căn “dễ làm – dễ cho thuê – dễ sinh dòng tiền”, phù hợp nhà đầu tư tìm sản phẩm thương mại bền vững.
Thiết kế hiện đại – mặt đứng thoáng – tối ưu vận hành thương mại
Eco-42 shophouse Thổ Cẩm sử dụng phong cách kiến trúc hiện đại, mặt đứng cao và thoáng, dễ tùy biến theo ngành hàng.

Điểm mạnh thiết kế:
- Mặt đứng thoáng, dễ đặt bảng hiệu → tăng độ nhận diện trên trục Thổ Cẩm.
- Ánh sáng tự nhiên tốt → tối ưu trải nghiệm khách và giảm chi phí vận hành.
- Bố cục sàn vuông vức → dễ set-up nội thất kinh doanh.
- Tầng trên thông thoáng → phù hợp dịch vụ, homestay, văn phòng thuê.
Thiết kế tập trung vào giá trị khai thác thực, không phức tạp, dễ thi công, dễ vận hành.




Hưởng trọn chuẩn sống ECO Lifestyle – tăng giá trị khai thác & thu hút khách
Eco-42 nằm trong hệ sinh thái Eco Lifestyle của Ecopalace – mô hình đô thị kết hợp thương mại, giải trí và không gian xanh.

Giá trị Eco Lifestyle mang lại:
- Lượng khách vãng lai từ công viên, căn hộ cao cấp & khách sạn 5 sao.
- Môi trường sạch – đẹp – văn minh → tăng giá trị thương hiệu kinh doanh.
- Cư dân nội khu có nhu cầu tiêu dùng cao → nguồn khách ổn định quanh năm.
- Hệ tiện ích liền mạch → tăng thời gian lưu trú và chi tiêu.

Nhờ đó, Eco-42 không chỉ là sản phẩm shophouse để kinh doanh, mà còn là tài sản đầu tư dài hạn có tiềm năng tăng giá mạnh theo sự hoàn thiện của toàn khu.







