ECO-65 Shophouse thổ cẩm sở hữu cùng lúc ba lợi thế lớn của trục Thổ Cẩm: khe thoáng một bên, vị trí gần khách sạn 5 sao và nằm ngay lối vào trung tâm thương mại. Hướng Bắc mang lại mặt tiền mát, phù hợp cho kinh doanh cả ngày, trong khi dải lưu thông mạnh trước cửa giúp căn dễ thu hút khách vãng lai lẫn cư dân nội khu.

Vị trí mặt tiền Thổ Cẩm, hai mặt thoáng, gần khách sạn 5 sao
ECO-65 Shophouse thổ cẩm nằm trên trục Thổ Cẩm – tuyến thương mại chính của toàn khu – với mặt tiền hướng Bắc giúp không gian mát, ít nắng gắt và phù hợp cho các mô hình cần khách đứng chờ hoặc ghé vào thường xuyên.
Căn sở hữu hai mặt thoáng gồm mặt tiền Thổ Cẩm và mặt thoáng bên phải nhờ tuyến đường nội khu, tạo độ mở rõ rệt so với các căn kẹp giữa và tăng khả năng hiển thị từ nhiều hướng tiếp cận.
Vị trí gần khách sạn 5 sao và ngay luồng di chuyển đi về trung tâm thương mại giúp ECO-65 Shophouse thổ cẩmđón dòng khách kép: khách lưu trú, khách vãng lai và cư dân nội khu.

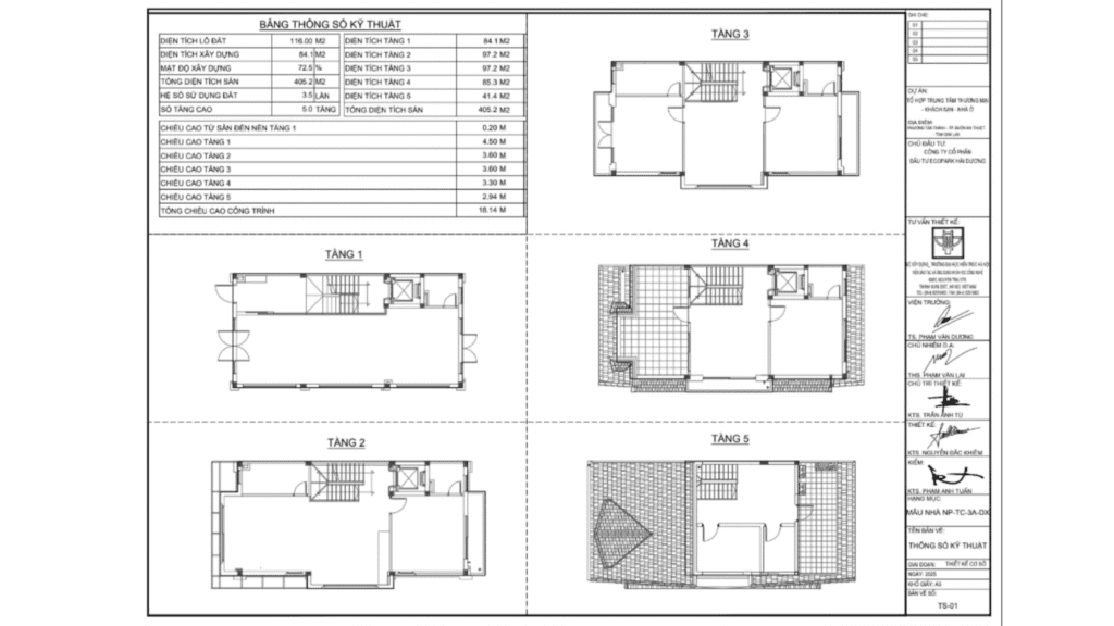
Mặt tiền 7,25m và tổng sàn 405,2m², biên độ khai thác lớn cho kinh doanh, ở và cho thuê
ECO-65 thuộc nhóm hai căn phố Thổ Cẩm có mức giá tốt nhất đợt đầu, tạo lợi thế lớn cho khách hàng muốn tối ưu biên độ tăng giá về sau.
Thiết kế mặt tiền rộng 7,25m cùng tổng diện tích sàn 405,2m² mang lại không gian khai thác thương mại mạnh, đặc biệt phù hợp với các ngành hàng cần mặt bằng dễ nhìn và trưng bày rõ.
Vị trí căn nằm gần giao lộ hai tuyến Thổ Cẩm giúp khả năng hiển thị vượt trội, đón lưu lượng từ cả hai hướng mà không bị đâm đường, nhờ đó giữ được sự an toàn, dễ tiếp cận và thoải mái cho khách dừng chân.
Với diện tích lô đất 116m² và cấu trúc nhiều tầng, ECO-65 cho phép triển khai mô hình kết hợp kinh doanh – ở – cho thuê một cách hiệu quả, phù hợp cho khách muốn vừa khai thác thương mại ổn định vừa sở hữu tài sản giữ giá trong giai đoạn mở bán đầu tiên.

Thiết kế của nhà phố thương mại thổ cẩm ECO-65 Shophouse thổ cẩm

ECO-65 Shophouse thổ cẩm mang ngôn ngữ kiến trúc Indochine đặc trưng của tuyến phố Thổ Cẩm, lấy cảm hứng từ hình khối mái nhà dài Tây Nguyên, tạo nên mặt đứng hài hòa, gần gũi và đồng nhất theo dãy.
Thiết kế tập trung vào tính thương mại: tỷ lệ mặt đứng rõ ràng, các đường nét vuông vức giúp biển hiệu dễ bố trí, còn các mảng kính lớn tạo độ thoáng sáng cho tầng trệt – yếu tố quan trọng khi kinh doanh dịch vụ hoặc trưng bày sản phẩm.
Nhờ nằm gần giao lộ hai tuyến Thổ Cẩm, khu vực có tầm nhìn mở và lưu lượng người qua lại cao, phong cách mặt đứng này càng phát huy hiệu quả khi khách có thể nhận diện cửa hàng từ xa. Sự kết hợp giữa kiến trúc Indochine, cảm hứng bản địa và tính thực dụng thương mại giúp ECO-65 phù hợp cho các mô hình như F&B nhỏ, cửa hàng tiện ích, chăm sóc cá nhân hoặc showroom gia dụng – những ngành nghề cần không gian dễ nhìn, dễ tiếp cận và thoáng sáng.
Không chỉ là nơi ở, Eco Palace mở ra phong cách sống bền vững – tinh tế – thuộc về, đúng tinh thần đô thị sinh thái mà Ecopark tiên phong tại Việt Nam.





ECO-65 Shophouse thổ cẩm là lựa chọn cân bằng tốt giữa giá trị thương mại và tiềm năng tích sản khi sở hữu hai mặt thoáng, mặt tiền hướng Bắc và vị trí gần khách sạn 5 sao – lối vào trung tâm thương mại. Liên hệ ngay để xem mặt bằng chi tiết và đặt lịch tham quan ECO-65 thực tế.












