Nhà phố thương mại Eco Palace Eco-103 kết hợp được cả hai giá trị mà khách hàng tìm kiếm trong phân khúc nhà phố thương mại: vị trí gần trung tâm thương mại nhất toàn tuyến và tầm nhìn công viên nội khu thoáng hiếm. Căn vừa dễ hiển thị, vừa có dòng khách ổn định từ cư dân và công viên, tạo lợi thế rõ rệt cho mô hình vừa ở vừa kinh doanh với mức giá tốt hơn nhiều so với nhóm villa đối diện công viên.

Vị trí gần trung tâm thương mại nhất, view công viên nội khu và hướng Tây Bắc thoáng sáng
Nhà phố view công viên Eco-103 nằm tại vị trí gần trung tâm thương mại nhất toàn tuyến Mai Hắc Đế, giúp căn đón trọn lưu lượng khách di chuyển giữa khu căn hộ – công viên – khu tiện ích.
Mặt tiền hướng Tây Bắc kết hợp tầm nhìn trực diện công viên nội khu tạo cảm giác thoáng, sáng và dễ nhận diện từ xa, đặc biệt phù hợp cho các mô hình cần độ hiển thị mạnh như văn phòng đại diện, showroom nhỏ hoặc cửa hàng dịch vụ.
Việc sở hữu cả vị trí sát TTTM lẫn view công viên – hai yếu tố hiếm khi xuất hiện cùng lúc ở phân khu nhà phố – giúp Nhà phố thương mại Eco Palace Eco-103 có sức hút lớn với khách tìm sản phẩm vừa để ở vừa để kinh doanh, đồng thời giữ giá tốt hơn nhờ sự khan hiếm của nhóm căn view nội khu.

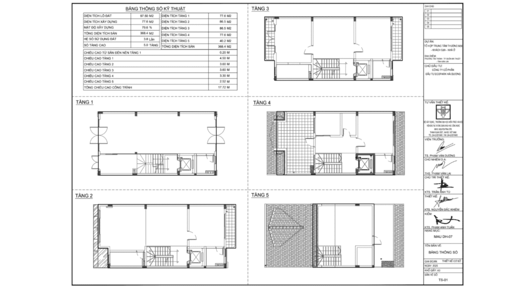
Mặt bằng 97,5m², tổng sàn 368,4m²: đủ lớn để mở cửa hàng, đặt văn phòng và khai thác đa mô hình
Nhà phố thương mại Eco Palace Eco-103 sở hữu diện tích lô đất 97,5m² cùng tổng sàn 368,4m², tạo lợi thế rõ rệt cho khách muốn khai thác mô hình “ở – kinh doanh – cho thuê” trên cùng một tài sản.
Mặt bằng tầng trệt rộng và vuông vức giúp bố trí cửa hàng, văn phòng hoặc studio dịch vụ dễ dàng, trong khi các tầng trên có thể tách công năng để ở hoặc cho thuê dài hạn.
Với cấu trúc nhiều tầng theo chuẩn nhà phố thương mại, ECO-103 mang lại biên độ khai thác linh hoạt và tối ưu chi phí vận hành cho khách hàng muốn vừa sinh hoạt tại chỗ, vừa duy trì mô hình kinh doanh ổn định ngay tại trục Mai Hắc Đế.

Thiết kế ECO-103 nhà phố view công viên mặt đứng dễ nhận diện, phù hợp mọi mô hình dịch vụ

ECO-103 nhà phố view công viên mang ngôn ngữ kiến trúc Indochine đặc trưng, lấy cảm hứng từ hình khối mái nhà dài người Tây Nguyên để tạo nên mặt đứng hài hòa, khác biệt và có tính nhận diện cao.
Tỷ lệ mặt tiền rõ ràng, đường nét gọn và mảng kính lớn giúp cửa hàng hoặc văn phòng dễ bố trí biển hiệu, trưng bày sản phẩm và tạo ấn tượng ngay khi khách nhìn từ trục công viên. Thiết kế thoáng, sáng và hiện đại này đặc biệt phù hợp cho các mô hình dịch vụ, showroom, văn phòng đại diện hoặc các thương hiệu cần hình ảnh chuyên nghiệp.
Phong cách sống Eco tại Eco Palace không chỉ là xanh – mà là sự cân bằng giữa ánh sáng, vật liệu tự nhiên và tinh thần bản địa, tạo nên trải nghiệm sống khác biệt giữa lòng thành phố.





Nhà phố thương mại Eco Palace Eco-103 vừa dễ hiển thị, vừa thuận lợi đón dòng khách ổn định, lại có tổng sàn lớn để linh hoạt triển khai mô hình ở kết hợp kinh doanh hoặc đặt văn phòng đại diện. Liên hệ ngay để xem thực tế ECO-103 và chọn vị trí view công viên hiếm trước khi nguồn cung khan hiếm hơn.












