ECO-10 được phát triển theo tiêu chuẩn Shophouse kinh doanh đường Y Ngông, sở hữu diện tích 162m² và nằm ngay tuyến trục thương mại trung tâm EcoPalace, phù hợp khách hàng muốn khai thác kinh doanh mạnh và tích lũy tài sản bền vững tại Buôn Ma Thuột.

Shophouse kinh doanh đường Y Ngông – trục thương mại đắt giá nhất EcoPalace
Shophouse kinh doanh đường Y Ngông ECO-10 tọa lạc trên trục Y Ngông – tuyến giao thương tập trung mật độ dân cư, thương mại và du lịch cao nhất trung tâm Buôn Ma Thuột, đồng thời kết nối trực tiếp các trục huyết mạch Mai Hắc Đế – Lê Duẩn – Lê Hồng Phong.
Đây là “vị trí kim cương” theo hồ sơ dự án, khi toàn khu EcoPalace nằm tại lõi trung tâm thành phố và liền kề các biểu tượng văn hóa – hành chính như Bảo tàng Đắk Lắk, Biệt điện Bảo Đại, công viên và trung tâm triển lãm tỉnh. Hướng Bắc của căn giúp mặt tiền luôn mát, bền nhiệt, tạo điều kiện vận hành kinh doanh ổn định quanh năm.

Mặt bằng 9×18 – tổng sàn 573.6m² tối ưu cho mọi mô hình kinh doanh
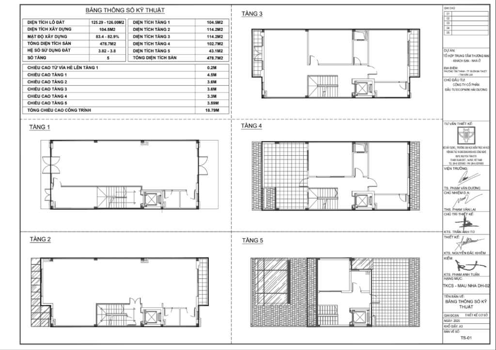
ECO-10 sở hữu diện tích lô đất 162m², tổng sàn 573.6m² với 5 tầng sử dụng, tạo biên độ khai thác vượt trội so với các sản phẩm shophouse truyền thống. Tầng 1 có không gian kinh doanh lớn lên đến 67.8m² cùng khu để xe và kho, đáp ứng nhu cầu vận hành cửa hàng, showroom, phòng khám, văn phòng hoặc thương hiệu dịch vụ.
Các tầng 2–4 được bố trí linh hoạt, có thể sử dụng làm văn phòng, studio, lớp học hoặc căn hộ dịch vụ, giúp chủ sở hữu tạo thêm dòng tiền thứ cấp. Khả năng mở rộng mô hình kinh doanh chính là USP mạnh nhất của ECO-10 – một tài sản vừa an cư, vừa khai thác thương mại, vừa tích sản dài hạn.

Shophouse đa tầng – thông thoáng – chuẩn vận hành thương mại

Thiết kế ECO-10 tuân thủ triết lý “thương mại hóa tối đa – sống thoáng trong từng tầng”, với mặt tiền rộng, cửa kính lớn đón sáng và hệ kết cấu cho phép bố trí nội thất linh hoạt theo từng ngành kinh doanh.
Nội khu các tầng trên được tối ưu theo phong cách sống EcoPalace: không gian mở, ban công thoáng, phòng khách – bếp – phòng ngủ được tổ chức khoa học, đảm bảo tiện nghi sinh hoạt song song với hoạt động kinh doanh. Sự kết hợp giữa công năng thương mại và chất sống sinh thái là dấu ấn thiết kế đặc trưng mà Ecopark Hải Dương định hướng cho toàn bộ shophouse EcoPalace.
Eco Lifestyle – chuẩn sống xanh – sạch – cân bằng ngay giữa trung tâm Buôn Ma Thuột.



ECO-10 là lựa chọn nổi bật trong dòng Shophouse kinh doanh đường Y Ngông, mang lại lợi thế lớn về vị trí, mặt bằng rộng và thiết kế thương mại hóa tối ưu. Đây là sản phẩm dành cho khách hàng muốn sở hữu tài sản có khả năng khai thác kinh doanh mạnh, ổn định và tăng giá bền vững tại trung tâm EcoPalace.













